Model Home – Sage Park

The model home at Sage Park features an open, airy layout designed to maximize space and comfort, with thoughtfully arranged living areas that support both everyday routines and relaxed living.
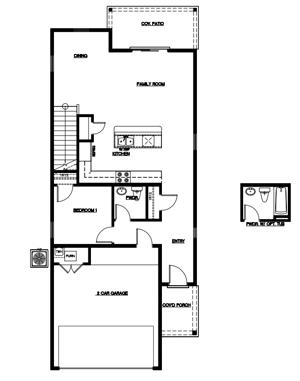
Floorplan
Designed with both comfort and functionality in mind, this layout offers a natural flow between living spaces, creating a balanced environment for everyday living and entertaining.
*Floorplans, renderings, features, dimensions, and specifications are subject to change without notice.
Square footages are approximate. Renderings are for illustrative purposes only and may not reflect final construction details.
Floorplans may depict structural options, upgrades, or features that are not included in all homes.
Please consult a sales representative for the most current information.
Other
- Community: SagePark
- Series: Sage Park
- Address: 6912 Thyme Rd SWAlbuquerque, NM 87121
- Sq. Ft.: 2,174
- Floors: 2
- Bedrooms: 4
- Bathrooms: 2.5
- Garage: 2
- Price: Model Home
- Availability: Model Home
- Phone Number: Model at 505-839-2043 Mike 505-514-8143 Teresa 505-550-7551 AJ 505-328-0044





