1728 Sage St.

A thoughtfully designed home that brings together comfort, functionality, and everyday ease, with well-planned living spaces that support both relaxation and daily life.
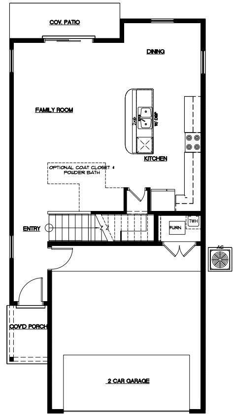
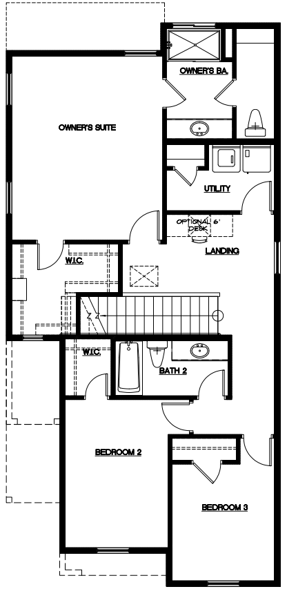
Floorplan – 1728 Sage St.
Designed to balance comfort and functionality, this home features a practical layout with inviting living spaces that support both everyday routines and relaxed living.
*Floorplans, renderings, features, dimensions, and specifications are subject to change without notice.
Square footages are approximate. Renderings are for illustrative purposes only and may not reflect final construction details.
Floorplans may depict structural options, upgrades, or features that are not included in all homes.
Please consult a sales representative for the most current information.
Other
- Community: Sage Park
- Series: Sage Park
- Address: 1277 Sage St SWAlbuquerque, NM 87121
- Sq. Ft.: 1747
- Floors: 2
- Bedrooms: 3
- Bathrooms: 3
- Garage: 2
- Price: $379,475
- Availability: Available!
- Phone Number: Model at 505-839-2043 Mike 505-514-8143 Teresa 505-550-7551 AJ 505-328-0044





