Spring Parade of Homes
La Mirada • Northeast Heights
April 24–26, 2026 | 11 AM–5 PM • May 1–3, 2026 | 11 AM–5 PM
Featured in the 2026 Spring Parade of Homes, 4316 Wymont Circle blends thoughtful everyday function with elevated design. From the private downstairs primary suite with its own coffee bar to the open upstairs living spaces and dual deck access, this home offers a distinctive layout in the heart of La Mirada’s gated Northeast Heights setting.
Private Downstairs Primary Suite
A tucked-away retreat with direct rear yard access
Coffee Bar + Laundry Access
Smart suite design with everyday convenience built in
Spa-Inspired Primary Bath
Quartz counters, dual sinks, and a low-maintenance walk-in shower
Upstairs Living + Dual Deck Access
Open kitchen, additional bedrooms, and connected outdoor living
Explore the Floorplan
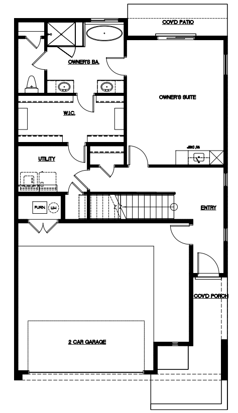
Lower Floor
Upper Floor
Interested in this home and others in the community?
Included Features
Thoughtfully selected details throughout the home create a layout that feels elevated, functional, and distinctly designed for the way people actually live.
Location & Community
A quiet gated setting in one of the Northeast Heights’ most convenient locations.
Tucked inside La Mirada, this unique home offers privacy, convenience, and close access to everything while still feeling set apart within a gated community environment.
Downstairs Primary Suite
A private retreat with thoughtful everyday comfort built in.
Complete with its own coffee bar, an expansive closet, and direct access to the laundry room, the downstairs primary suite also opens conveniently to the rear yard for a more connected and functional daily routine.
Spa-Inspired Primary Bath
A polished bath space that balances luxury and low-maintenance design.
Features include a pedestal tub, quartz countertops, dual sinks, and an elegant stone walk-in shower selected for both style and ease, creating a space that feels refined without sacrificing practicality.
Upstairs Living & Views
Open-concept upstairs living with flexible space and access to Albuquerque views.
Upstairs, the home features a spacious kitchen with an island, two secondary bedrooms, and one bedroom with a walk-in closet and dual deck access, creating an upper level that feels open, functional, and connected to the outdoors.
Visit this featured home during Parade hours or request more information below.
Floorplans, renderings, and features are for illustrative purposes only and may show structural options, upgrades, or designer selections that may not be included in the home as built. Square footages are approximate. Prices, features, specifications, and availability are subject to change without notice.



